Цена: 163 530



| Количество пользователей | 5 чел. |
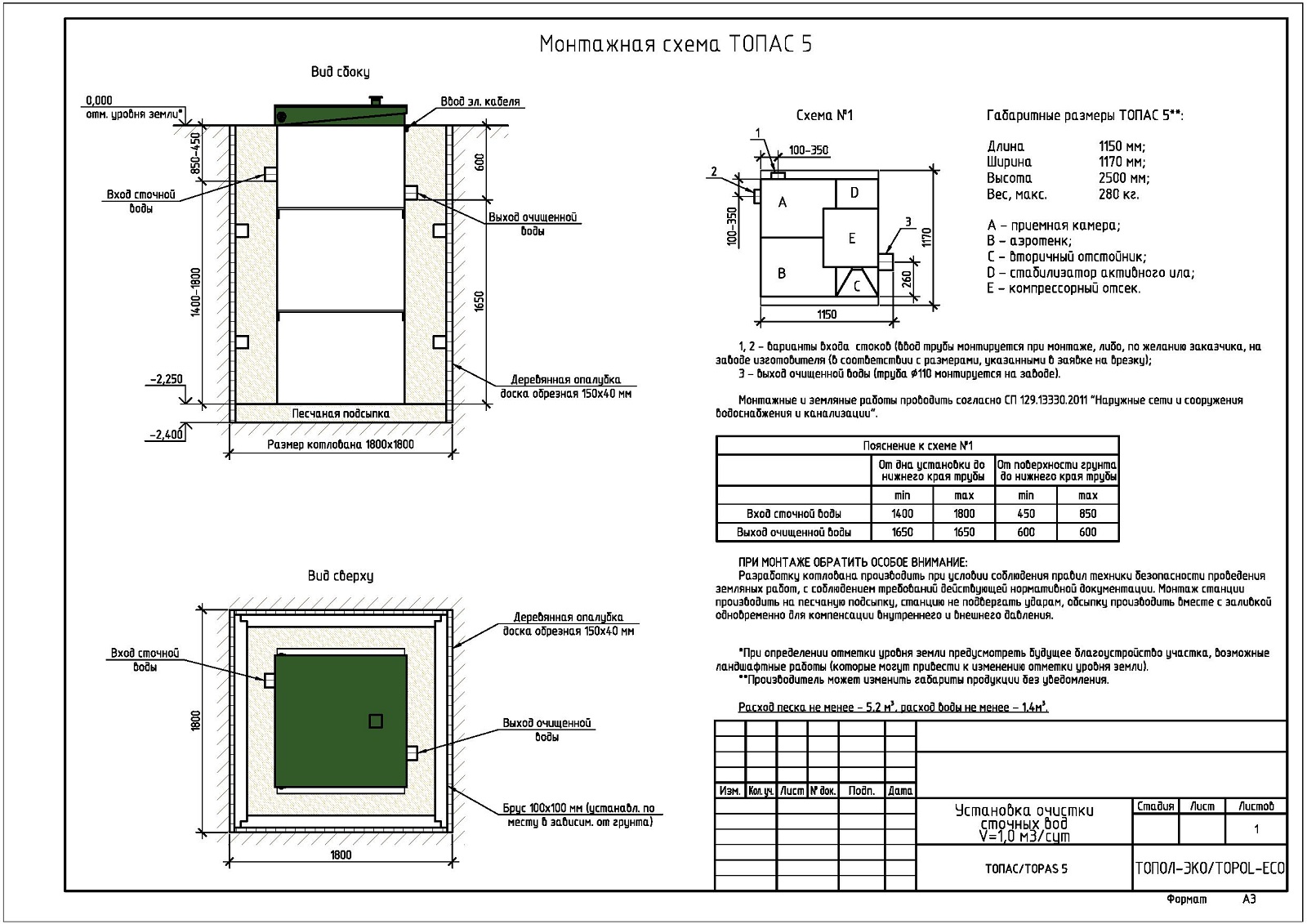
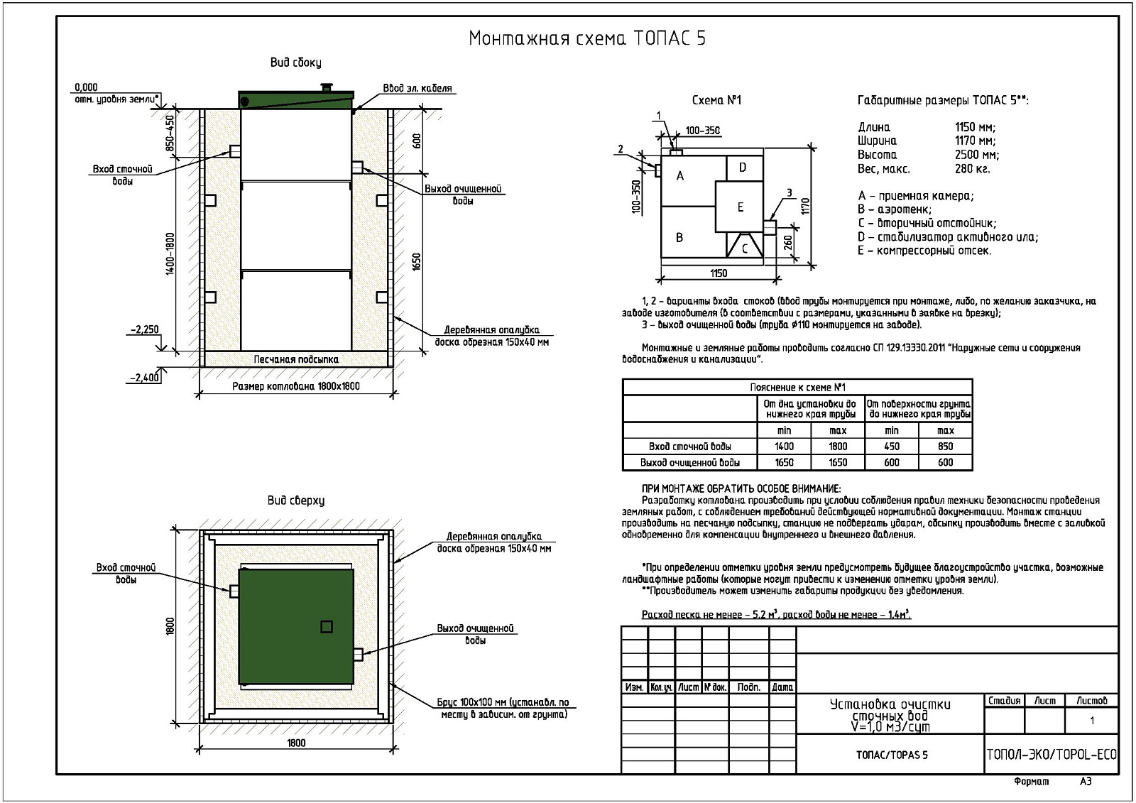
| Производительность | 1 м3/сут. |
| Залповый сброс | 220 л. |
| Глубина подводящей трубы | 450-850 мм |
| Глубина отводящей трубы | 600 мм |
| Потребление электроэнергии | 1,5 кВ/сут. |
| Способ отвода очищенной воды | Самотечный |
| Размеры (ДхШхВ) | 1150 х 1170 х 2500 |
| Вес | 280 кг |
| Тип очистного устройства | аэрационная установка |
| Перечень работ | Цены (руб.) |
|---|---|
| Стандартная установка (цена зависит от модели септика) | от 19900 |
| Песок | от 19900 |
| Суглинок | от 20900 |
| Глина | от 21900 |
| Плывун | от 22900 |
| Торф | от 22900 |
| Доставка по Москве | бесплатная |
| Доставка по Московской области | бесплатная до 100 км от МКАД |
| Копка котлована (песок, суглинок, глина, плывун, торф) | включено в установку |
| Копка подводящей/отводящей траншеи с трубой d110/32 (4 м/пог.) | включено в установку |
| Прокладка электрокабеля ВВГ 3х1.5 ГОСТ в гофре (10 м/пог.) | включено в установку |
| Дополнительные работы | Цены (руб.) |
|---|---|
| Прокладка подводящей канализационной трубы d110 (свыше 4 м/пог.) | 1100 за м/п |
| Прокладка отводящей канализационной трубы d32 (свыше 4 м/пог.) | 850 за м/п |
| Прокладка электрокабеля ВВГ 3х1.5 ГОСТ в гофре (свыше 10 м/пог.) | 200 за м/п |
| Врезка в действующую канализацию | 1500 |
| Подкоп под отмосткой | 2000 |
| Завод трубы и электрического кабеля в дом | от 1050 |
| Установка фильтрующего ж/б колодца (2 кольца + крышка + доставка + установка) | от 18000 |
| Монтаж ревизии (включая материал) | от 2500 |
| Алмазное бурение фундамента | от 6000 |